Продажа дома
Московская область, СПК Простор, , 311
- 106 м²
- Площадь
- 1
- Этажность
- 5 сот
- Площадь участка
11 500 000 ₽
108 902 ₽ за м²
ID объявления 12493874
Поделиться
Добавить в избранное
Лот №511.
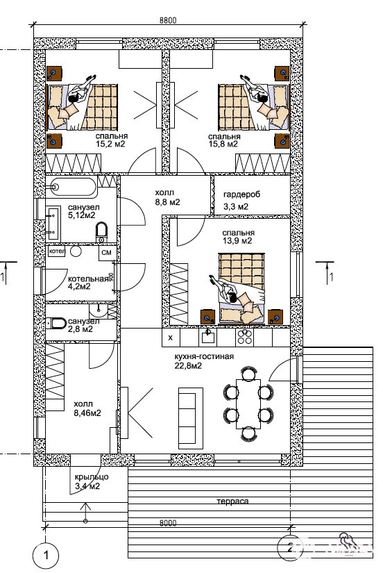
Дом 105, 6 кв.м. для ПМЖ на участке 4, 5 соток вблизи пос. Новый Городок го Щелково Щелковское шоссе 15 км от МКАД в СПК Простор д. 302. Год постройки 2025. Дом одноэтажный из газосиликатных блоков Bonolit D500 толщиной 400 мм. Залит армопояс. Фундамент армированная бетонная подушка 200 мм с утеплением пеноплексом 50 мм. Размер дома по фундаменту 13, 2х8, 8 метра. Крыша из мягкой черепицы. Утепление крыши 200 мм. Пластиковые двухкамерные стеклопакеты производство Rehau. Добротная входная металлическая дверь. Утепленная отмостка. Установлена водосточная система и снегозадержатели. Планировка: просторная кухня-гостиная 22, 8 кв.м., холл, три жилые комнаты 15, 22; 15, 8 и 13, 9 кв.м., два с/у, котельная, гардероб, тамбур, терраса. Дом отстоялся. Можно начинать отделочные работы. Электричество 15 кВт, скважина, магистральный газ перед участком. Место для парковки выложено брусчаткой. Участок 4, 5 сотки по периметру огорожен забором из профлиста. Откатные ворота с электромотором и автоматикой. Подъезд к участку круглогодичный по дороге из асфальтированной крошки. СПК по периметру огорожено. Установлено видеонаблюдение. На въезде в СПК управляемые ворота. Вся необходимая инфраструктура: школа, детские сады, поликлиника, сетевые магазины, салон красоты, Сбербанк, ДК, стадион, кружки в пешей доступности. Остановка автобусов на Москву в пос. Новый Городок. Недалеко заповедник Лосиный Остров, каскад Медвежьих озер. Один собственник. Свободная продажа.
Дата обновления: 17 февраля 2026