Аренда помещения свободного назначения

1 974 000 ₽/мес

14 400 ₽ за м²/год

1 645 м²
Площадь
1
Этаж

Поделиться

Добавить в избранное

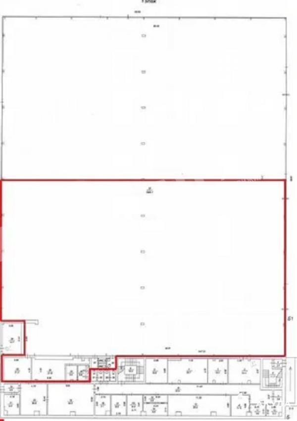
Лот №947655 Предложение от Собственника! Предлагается в аренду современное складское помещение общей площадью 1645 м² в здании, расположенное на первом этаже. Объект находится в престижном центральном районе города Балашиха, напротив железнодорожной станции, что обеспечивает отличную транспортную доступность (8 км от мкад). Имеется удобный выезд на федеральную трассу М7 и Щелковское шоссе, а также преимущество сложившегося торгово-промышленного окружения и развитой инфраструктуры.

Площадь складского пространства составляет 1578 м², под вспомогательные помещения, включающие раздевалки, душевые и комнаты отдыха, отведено 67, 8 м². Помещение оборудовано центральными коммуникациями, отоплением и электричеством мощностью до 100 кВт. Основные параметры: высота потолков 8, 0 метров (в коньке 10 метров), антипылевое покрытие пола, два воротных проема в ноль и пожарная система, включающая сигнализацию и гидранты.

Территория находится под охраной с круглосуточным бесплатным въездом. Для клиентов предусмотрена удобная парковочная площадка, рассчитанная на размещение как большегрузного, так и легкового транспорта.

Помещение подходит для широкого спектра применений, включая такие профили: Склад, Фулфилмент, Склад для маркетплейсов, Хранение, Переупаковка, Комплектация, Фасовка, Производство, Логистический терминал, Распределительный центр, Склад для грузов, Кросс-докинг, Сборка изделий, комплектующих, Дооснащение продукции, Монтаж / демонтаж оборудования, Тестирование и проверка работоспособности техники, Ремонт и сервисное обслуживание на складе, Перемаркировка и ретейлинг упаковки и другие.



Стоимость аренды: 14400 руб/м2/год (1974000 руб в месяц) НДС 20% оплачивается дополнительно. В цену включено: эксплуатационные расходы. В цену не включено: затраты на электричество, коммунальные расходы, уборка.

Чтобы получить ПОДРОБНУЮ ПРЕЗЕНТАЦИЮ С ПЛАНИРОВКОЙ И ФОТОГРАФИЯМИ, звоните или отправьте свой email в сообщении на портале. Высылаем в течение 15 минут по запросу!

☎ Конт. лицо: Алексей Владимирович, доб. 217, ЛОТ №947655

Дата обновления: 5 октября 2025