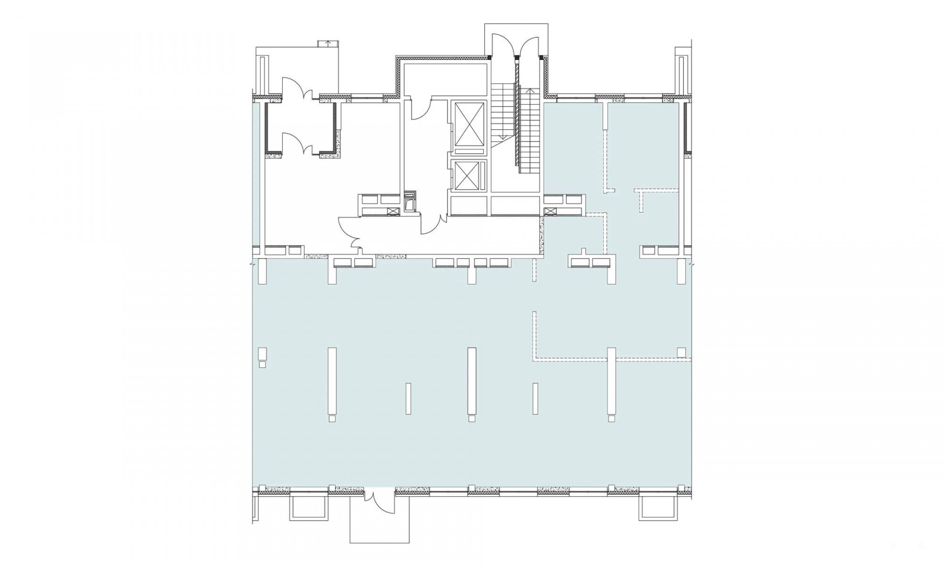
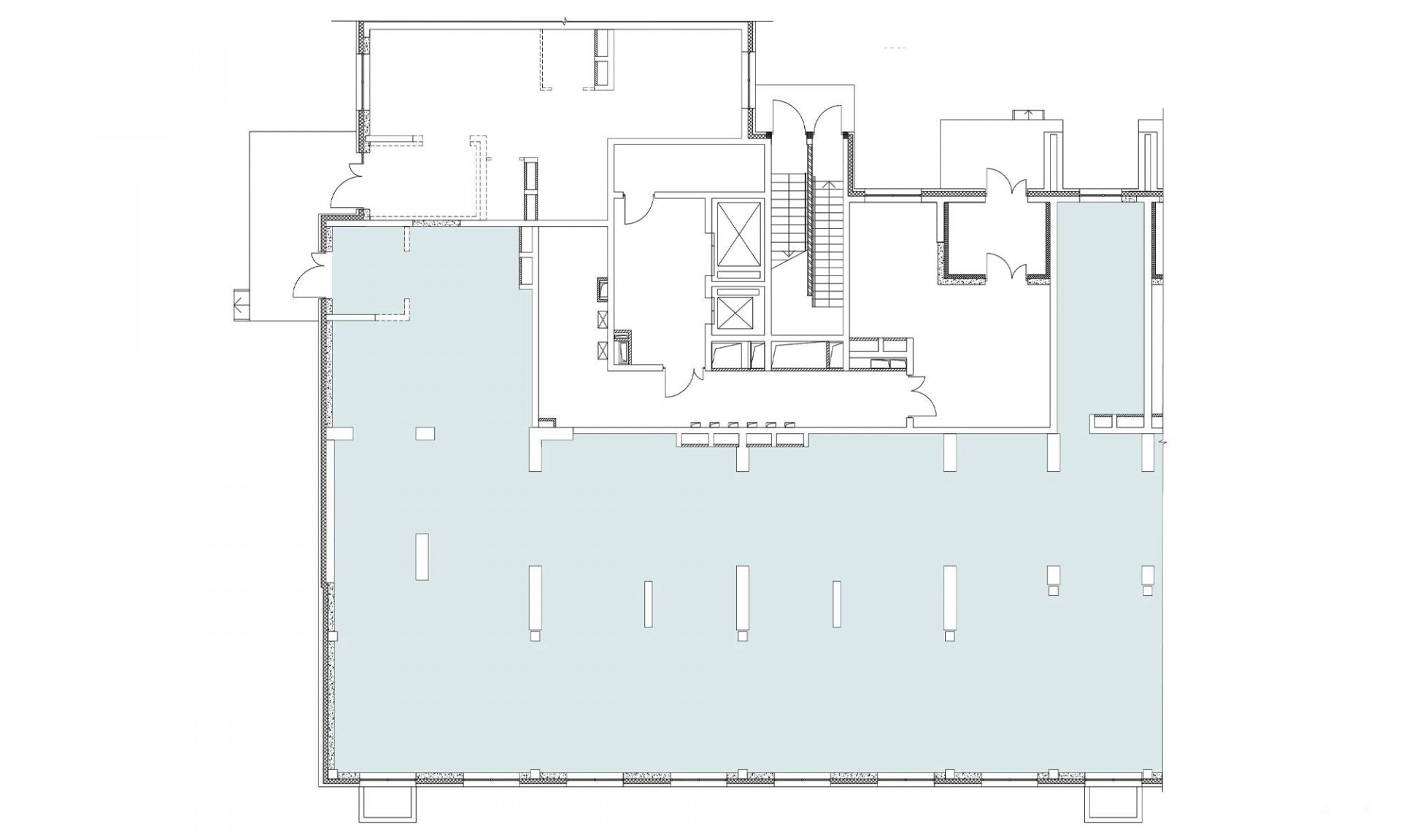
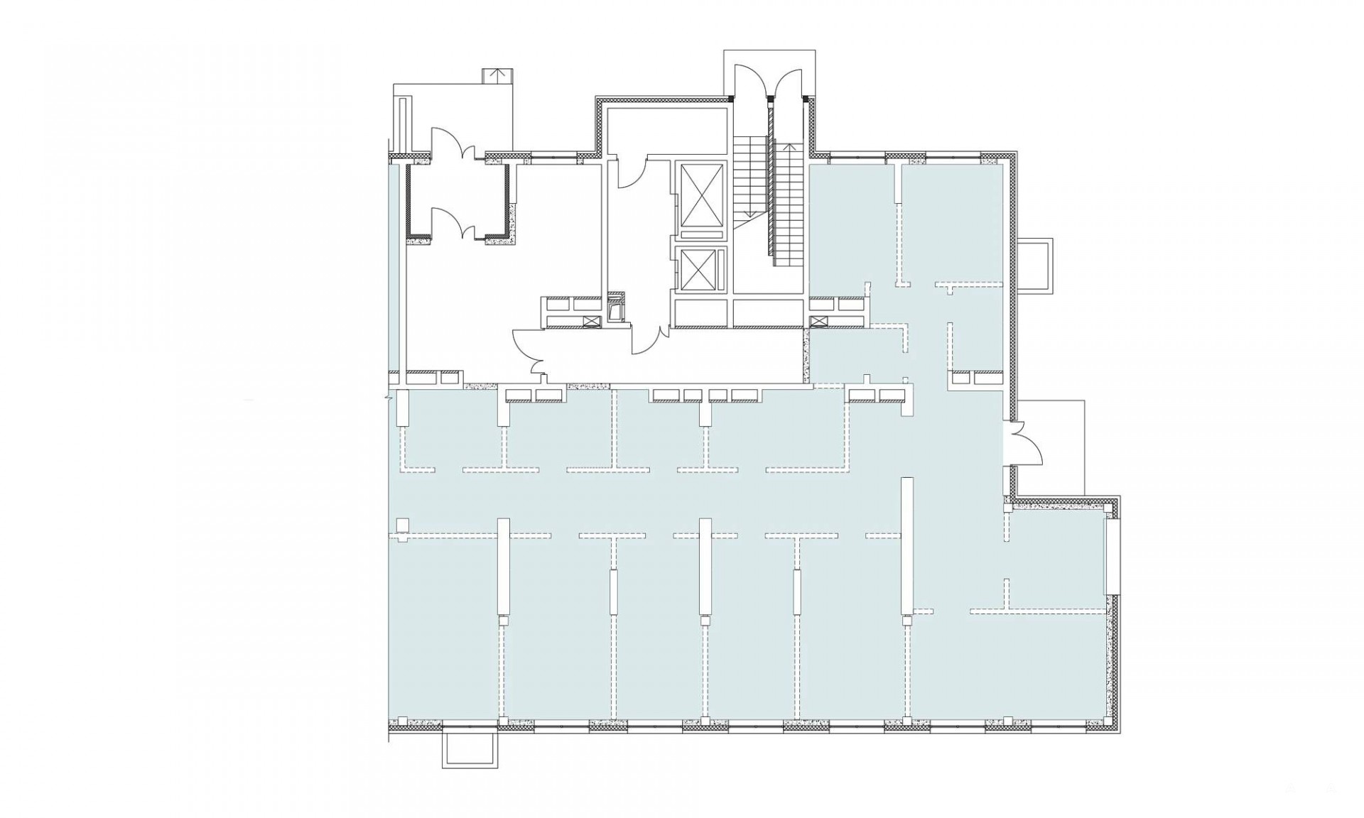
Аренда помещения свободного назначения

1 150 800 ₽/мес

16 800 ₽ за м²/год

822 м²
Площадь
1/18
Этаж

Поделиться

Добавить в избранное

ЖК «Новая Алексеевская роща» - перспективный жилой комплекс комфорт-класса в подмосковной Балашихе, ориентированный на активное развитие стрит-ритейла и сервисной инфраструктуры. Комплекс расположен в 6 км от МКАД по Щелковскому шоссе, вблизи станции метро «Щелковская», в живописной долине реки Пехорки, рядом с национальным парком «Лосиный Остров» и популярными зонами отдыха.
Локация формирует стабильный пешеходный и автомобильный трафик за счёт плотной жилой застройки, развития соседних кварталов и дефицита качественной коммерческой инфраструктуры в окружении. Проект ориентирован на семейную аудиторию и постоянное проживание, что обеспечивает высокий ежедневный спрос на товары и услуги повседневного назначения.
В составе комплекса предусмотрена собственная социальная инфраструктура: детский сад на 250 мест, школа на 1 230 мест, поликлиника. Это дополнительно усиливает поток посетителей и повышает коммерческий потенциал помещений на первых этажах.
Коммерческие помещения в ЖК «Новая Алексеевская роща» подходят для размещения магазинов, супермаркетов, кафе и пекарен, аптек, салонов красоты, медицинских центров, пунктов услуг, детских и образовательных проектов, а также офисов продаж и сервисных компаний.
Параметры помещений:
площади от 36 до 827 м;

отдельные входы с улицы;


витринное остекление и места под вывески;


все инженерные коммуникации подведены;


помещения передаются без отделки, что позволяет реализовать любой формат.

ЖК «Новая Алексеевская роща» - это локация с растущей аудиторией, понятным спросом и долгосрочным потенциалом для стабильного бизнеса.

Дата обновления: 18 февраля 2026